The DUO 900 was designed for a French client. He wanted a trailer catamaran which is suitable for channel and  sea sailing This is the reason why the original design has a beam of only 4.00 m over all. The boat have had to be a trailer catamaran. So there where many restriction. One of these is the beam on the trailer. In Europe in general the maximum trailer beam is restricted to 2.53 m. This restricts the hull beam to 1,25m. As you can see on the lay out, the boat has sufficient accommodation for three persons. The height in the cabin is1,82 m.   
The hulls have a-symmetrical cross section. This means no boards or keels are necessary.
Construction is the proven (ply)wood/glass/epoxy system. The boat is easy to build. Also beginners will need not more as 900 hours
The boat is mainly build from 8 mm plywood on stringers. In the end this is the simplest way to build.

SPECIFICATION

L.o.a.:                  8,99  m
L.w.l.:                  8.99  m
Beam  :                  4.52  m
Beam c/c :               4.20  m
Draught  :          0.43/0.70  m
Mainsail                30.00  m2
Jib                     10.00 m2             
Code 1                  40.00  m2

Weight empty          700.00  kg
Weight load c.w.l.   1776.00  kg
Aux.power              12.00  HP
B/L ratio c/c           46 %
Stability maximum    32000     kg/m
Some construction pictures. The first photo shows all the bulkheads. The following ones show the construction of the boat. As with all of my designs. In the K-designs forum many photos show the construction of all my designs, made by cuistomers.
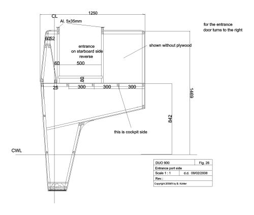
Here a drawing of the entrance. Again very strong and easy to build. The original drawing is a 1 : 1 like all the drawings  DXF DXF files
 
The plan is delivered as an attachment to
an e-mail all drawings are CAD (DXF) files

Plan costs US$ 290,-
The Study plan consists of 13 pages including drawings, drawing list and list of material

Study plans cost US $  15,-

editCopyright © 2025 by B. Kohler, K-designs All rights reserved